Ваша надежная строительная компания:
профессиональный подход к малоэтажному строительству
Герб города Ярославль
Строим каркасные дома от 45 дней и от 40.000 рублей за кв.м.

Меню

Главная О нас Загородные дома Фундаменты Заборы Монолитные работы Контакты

экогород

Загородные дома

Герб города Ярославль
Загородные дома
Этапы строительства каркасного дома
  1. Подготовка участка: Вывоз мусора, разбивка осей, геодезическая съёмка.
  2. Фундамент: Виды: мелкозаглубленная лента (заглублена 40–50 см), винтовые сваи O108 мм (вкручиваются за 1 день), буронабивные столбы O200 мм под веранду. Монолитная плита: Армирование, заливка бетона М200–М250, горизонтальная гидроизоляция рубероидом.
  3. Чистовой пол 1-го этажа: Укладка рулонной гидроизоляции, монтаж лаг 50х150 мм с шагом 600 мм, утепление минватой 150–200 мм, черновая фанера 18 мм.
  4. Сборка каркаса стен: Нижняя обвязка 150х50 мм, вертикальные стойки 150х50 мм каждые 600 мм, двойные стойки у окон и дверей, верхняя обвязка, укосины 25х100 мм для жёсткости.
  5. Перекрытие/мансарда: Балки перекрытия 200х50 мм, утеплитель 200 мм, черновой настил OSB-18 мм.
    Стропильная система: Стропила 50х150 мм, контробрешётка 25х50 мм, гидроветрозащитная мембрана, обрешётка 25х100 мм (шаг зависит от кровли).
  6. Кровельное покрытие:
    Виды:
    1. металлочерепица (быстро, шумно при дожде);
    2. мягкая битумная черепица (тихая, дороже на 15 %);
    3. ондулин (дешёвый, 10 лет службы);
    4. фальцевая сталь (60 лет, минимальный уход).
    Укладка с вентзазором 50 мм, софиты и водосток ПВХ.
  7. Утепление и пароизоляция: Минвата 150 мм + доп. 50 мм (перекрёстный слой), паробарьер на стороне помещений, проклейка алюминиевым скотчем.
  8. Наружная обшивка:
    Варианты:
    1. OSB-12 мм + ветрозащита + сайдинг;
    2. СИП-панели 124 мм (готовый «сэндвич»);
    3. вентилируемый фасад: вагонка, блок-хаус, фасадная доска, керамосайдинг.
    Декоративный утеплительный «пирог» с воздушным зазором 40 мм.
    Окна и двери: Установка ПВХ или деревянных стеклопакетов, уплотнительный контур, откосы из влагостойкой фанеры.
  9. Инженерия: Разводка электрики в гофре между стойками, канализация O110 мм, водопровод PEX-AL, отопление (конвекторы, тёплый пол на 1-м этаже).
  10. Внутренняя отделка: Каркас перегородок 75х50 мм, шумоизоляция, ГКЛ-12 мм, шпаклёвка, покраска или обои. Полы — фанера 18 мм + ламинат/ламинат-влагостойкий.
  11. Фасад и благоустройство: Окраска или облицовка клинкерной плиткой, установка лестницы и террасы, отмостка шириной 1 м, дренаж по периметру.

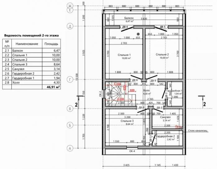
Проект загородного дома ЭГ-Д-84

от 50 до 100 м2
1 этаж
3 комнаты

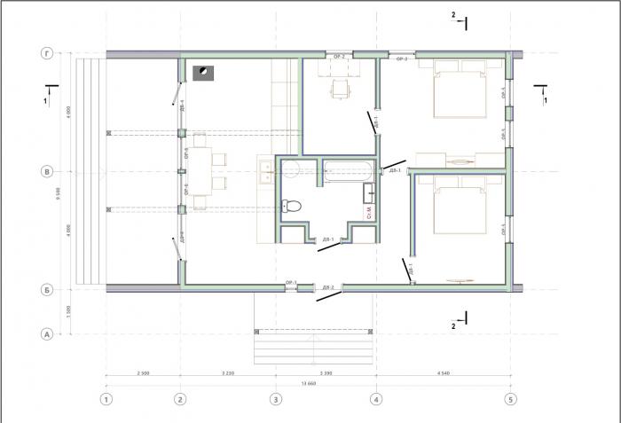
Проект загородного дома ЭГ-Д-177

от 100 до 200 м2
1 этаж
3 комнаты

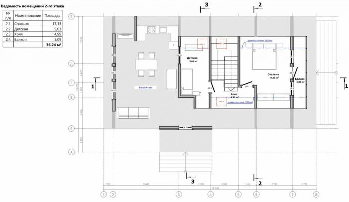
Проект загородного дома ЭГ-Д-143

от 100 до 200 м2
2 этажа
4 комнаты

Проект загородного дома ЭГ-Д-130

от 100 до 200 м2
1 этаж
4 комнаты

Проект загородного дома ЭГ-Д-155

от 100 до 200 м2
1 этаж
4 комнаты

Проект загородного дома ЭГ-Д-100

от 100 до 200 м2
2 этажа
5 комнат

Проект загородного дома ЭГ-Д-88

от 50 до 100 м2
1 этаж
3 комнаты

Проект загородного дома ЭГ-Д-123

от 100 до 200 м2
2 этажа
5 комнат

Проект загородного дома ЭГ-Д-167

от 100 до 200 м2
1 этаж
5 комнат

Проект загородного дома ЭГ-Д-104

от 100 до 200 м2
1 этаж
4 комнаты

Проект загородного дома ЭГ-Д-91

от 100 до 200 м2
1 этаж
5 комнат

Проект загородного дома ЭГ-Баня-42

до 50 м2
1 этаж
3 комнаты

Проект загородного дома ЭГ-Д-62

от 50 до 100 м2
1 этаж
3 комнаты

Проект загородного дома ЭГ-Д-100(0)

от 50 до 100 м2
1 этаж
3 комнаты

Проект загородного дома ЭГ-Д-80

от 50 до 100 м2
1 этаж
3 комнаты

Проект загородного дома ЭГ-Д-180

от 100 до 200 м2
1 этаж
3 комнаты

Проект загородного дома ЭГ-Д-65

от 50 до 100 м2
1 этаж
3 комнаты

Проект загородного дома ЭГ-Д-153

от 100 до 200 м2
2 этажа
5 комнат

Проект загородного дома ЭГ-Д-106

от 100 до 200 м2
1 этаж
4 комнаты

Проект загородного дома ЭГ-Д-79

от 50 до 100 м2
1 этаж
2 комнаты

Проект загородного дома ЭГ-Д-50

до 50 м2
1 этаж
2 комнаты

Проект загородного дома ЭГ-Д-120

от 100 до 200 м2
1 этаж
4 комнаты

Проект загородного дома ЭГ-Д (с баней)-59

от 50 до 100 м2
1 этаж
1 комната

Проект загородного дома ЭГ-Д-67

от 50 до 100 м2
2 этажа
3 комнаты
Рассчитать проект

Рассчитать онлайн

Тип проекта Ваше имя Телефон для связи