

0 Р.
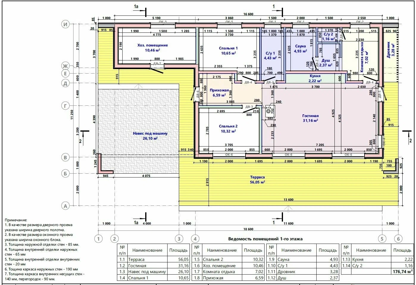
Общая площадь помещений, м2 - 176,74
Этажность - 1
Количество комнат - 3 (+сауна)


Общая площадь помещений, м2 - 176,74
Этажность - 1
Количество комнат - 3 (+сауна)