Ваша надежная строительная компания:
профессиональный подход к малоэтажному строительству
Герб города Ярославль
Строим каркасные дома от 45 дней и от 40.000 рублей за кв.м.

Меню

О нас Загородные дома Фундаменты Заборы Монолитные работы Контакты

экогород

Проект загородного дома ЭГ-Д-143

Герб города Ярославль
Проект загородного дома ЭГ-Д-143
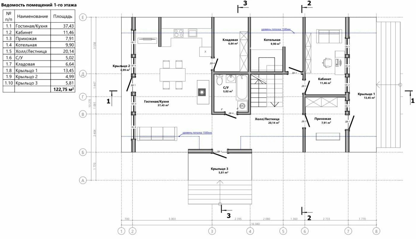
План Проект загородного дома ЭГ-Д-143
Доп. изображение Проект загородного дома ЭГ-Д-143Доп. изображение Проект загородного дома ЭГ-Д-143Доп. изображение Проект загородного дома ЭГ-Д-143Доп. изображение Проект загородного дома ЭГ-Д-143Доп. изображение Проект загородного дома ЭГ-Д-143Доп. изображение Проект загородного дома ЭГ-Д-143Доп. изображение Проект загородного дома ЭГ-Д-143
0 Р.
Общая площадь помещений, м2 - 143,42
Этажность - 2
Количество комнат - 4
от 100 до 200 м2
2 этажа
4 комнаты
Рассчитать проект

Рассчитать онлайн

Тип проекта Ваше имя Телефон для связи