Ваша надежная строительная компания:
профессиональный подход к малоэтажному строительству
8
(910)
811 59-99
257529, г. Ярославль, ул.Дружинина, 25
О нас
Загородные дома
Фундаменты
Заборы
Монолитные работы
Контакты
Найти
Строим каркасные дома от 45 дней и от 40.000 рублей за кв.м.
Меню
О нас
Загородные дома
Фундаменты
Заборы
Монолитные работы
Контакты
экогород
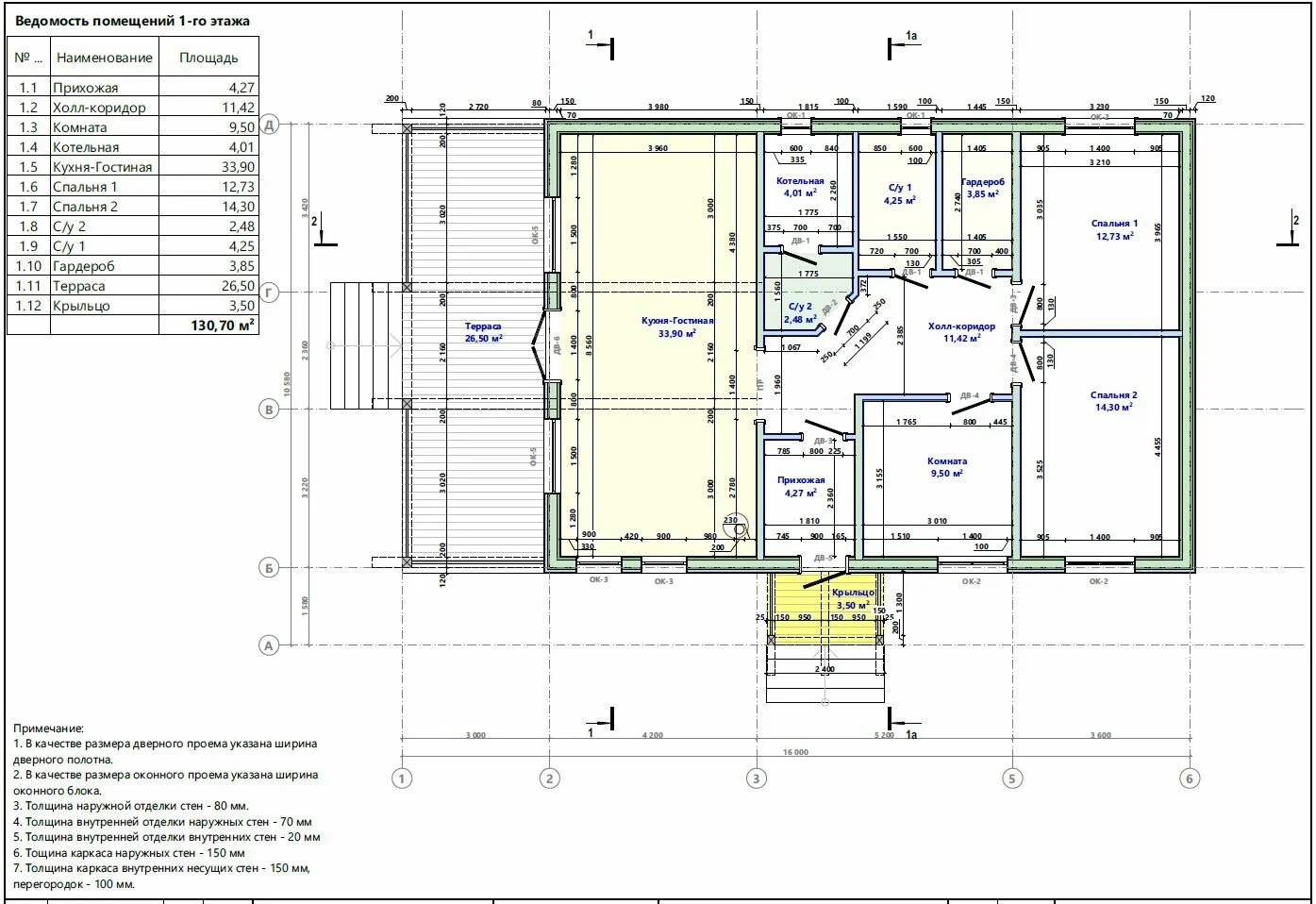
Проект загородного дома ЭГ-Д-131
0 Р.
Общая площадь помещений, м2 - 130,7
Этажность - 1
Количество комнат - 4
от 100 до 200 м2
1 этаж
4 комнаты
Заказать
Рассчитать проект
Рассчитать онлайн
Тип проекта
Строительство дома
Фундамент
Монолитные работы
Строительство заборов
Ваше имя
Телефон для связи
Оставить заявку