Ваша надежная строительная компания:
профессиональный подход к малоэтажному строительству
Герб города Ярославль
Строим каркасные дома от 45 дней и от 40.000 рублей за кв.м.

Меню

О нас Загородные дома Фундаменты Заборы Монолитные работы Контакты

экогород

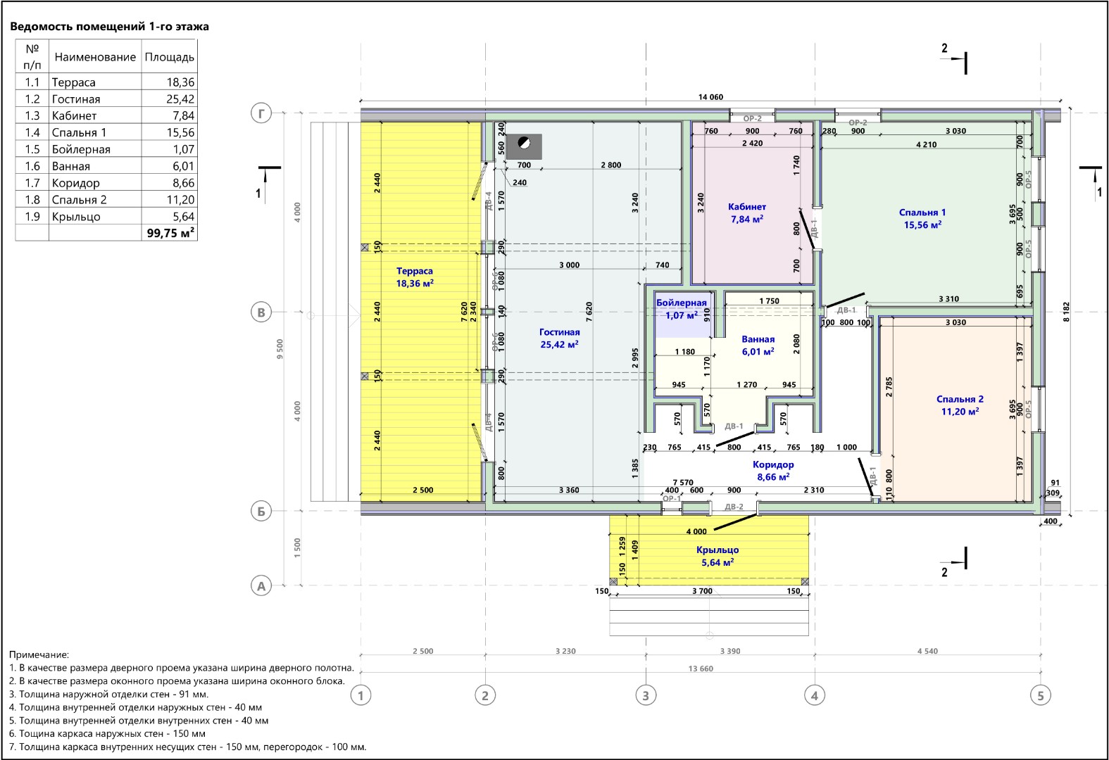
Проект загородного дома ЭГ-Д-100(0)

Герб города Ярославль
Проект загородного дома ЭГ-Д-100(0)
План Проект загородного дома ЭГ-Д-100(0)
Доп. изображение Проект загородного дома ЭГ-Д-100(0)Доп. изображение Проект загородного дома ЭГ-Д-100(0)Доп. изображение Проект загородного дома ЭГ-Д-100(0)Доп. изображение Проект загородного дома ЭГ-Д-100(0)Доп. изображение Проект загородного дома ЭГ-Д-100(0)Доп. изображение Проект загородного дома ЭГ-Д-100(0)Доп. изображение Проект загородного дома ЭГ-Д-100(0)Доп. изображение Проект загородного дома ЭГ-Д-100(0)
0 Р.
Общая площадь помещений, м2 - 61,5
Этажность - 1
Количество комнат - 3
от 50 до 100 м2
1 этаж
3 комнаты
Рассчитать проект

Рассчитать онлайн

Тип проекта Ваше имя Телефон для связи